| Gross buildable area | 19.9 sqm |
|---|---|
| Usable area | 18.13 sqm |
| Weight ca | 6.5 tonnes |
| External: | L5700, W3500, H4000 mm / |
| U values range btw: | 0.16-0.202 W/m2K |
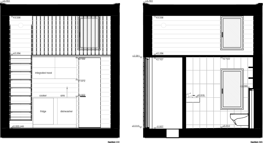
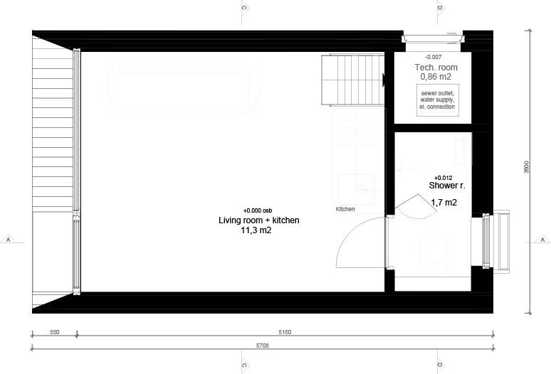
Our smallest, most compact model, offers a thoughtfully designed living experience within just 20 square meters — featuring a stylish kitchenette, a modern shower room, storage, a dedicated sleeping area, and a cozy lounge space.
Year round living is enabled by the mineral wool insulation and electrical floor heating and triple glazed windows in standard configuration.

Smart living in a small footprint

Ready to use, fast to install
Arrives fully finished; minimal groundwork and one-day installation get you living sooner.

Low energy, low maintenance
High insulation and efficient systems keep comfort high and running costs low.
STANDARD EQUIPMENT
Included in the price
STRUCTURE AND FINISHES
Timber structure
Timber cladding (color painted)
Insulated thick walls, ceiling, and floor (thick insulation)
Front terrace
Glass front door (with Assa Abloy lock)
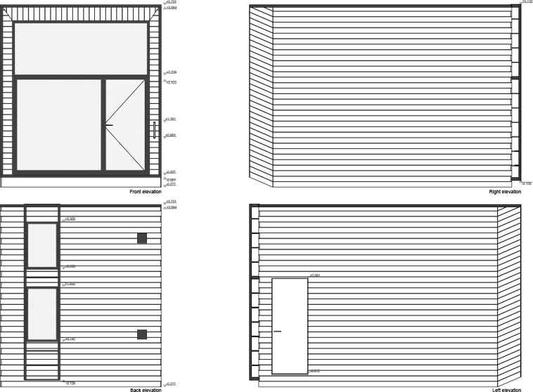
Signature front facade with triple-glazed wooden frame window
Two small openable windows in the back wall
Ladder for rainwater drainage
Mailbox and bicycle holder
Show more
MEP – Mechanical, Electrical & Plumbing
EU-standard electrical installation
Electrical cables integrated in panels, switches and sockets
Electrical floor heating (2 zones)
LED lighting and readiness for pendant lights
In technical room (access outside):
water boiler
ventilation system
electrical connection 3PH x 20A
fuse box
water and plumbing connections
water filters and pressure reducer
Interior Finishes and Furnishing
Loft area
Stairs to access Loft area
Smooth wooden boards on walls
Laminate floor cover
Kitchen readiness
Fully finished, tiled bathroom with sanitary equipment – sink, shower and toilet
OPTIONAL PREMIUM Extras
Not included in the price
(not included in standard equipment):
Side window narrow (max 1m)
Plywood on walls and ceiling
Natural parquet floor
Kitchen cabinets with stone worktop, sink and mixers
Optional kitchen appliances:
built-in fridge
2-zone induction hob induction hob
kitchen hood
Premium mixers in kitchen
Premium mixers in bathroom
Premium toilet
Shower door, foldable (glass)
Unico Air cooling system with Heat Pump (remote over wifi available)
Instantaneous water heater (3x40A required)
Fenix floor heating wifi controller
Dimmer for the LED lights indoors and outdoors
HALKE smart lock system
Extra set of keys
Dim-out and day curtains, venetian blinds
For your KODA arrival, what do you need to prepare
ground with levelled footing with sufficient weight-bearing capacity
(no full foundation needed)
connection points for water, electricity
and sewage.
Crane for unloading and one day for installation (local certified specialists to connect to water, sewage, electricity)
KODA EXTERIOR FINISH
Standard solution: timber cladding spruce / pine with sikkens rubbol facade special
Wood is authentic, eco-friendly, healthy and the only truly renewable construction material.
AB grade timber is industrially primed and coated on all three sides. The timber is sourced according to FSC and PEFC sustainability principles and produced according to European standard EN 14915:2013.

KODA color options
Cement composite panels
Composite panels consisting of a mixture of wood particles and cement called the Cement Bonded Particle Board (CBPB). It combines the flexibility of wood with the strength and durability of cement, allowing a wide range of applications.

Aluminium cladding
Composite panels are light, strong, easy to clean and with a great variety of applications. We suggest using black Albond 9000 with A2 fire resistance level.

FLOORING OPTIONS
STANDARD FINISH: LAMINATE FLOOR
In standard your KODA comes with laminate floor. Laminate flooring offers the beauty of wood with exceptional durability. It’s stylish, easy to maintain, and perfect for creating a warm, inviting space in any home or office.






PREMIUM – NATURAL PARQUET FLOOR or OILED PARQUET FLOOR
For those who appreciate the timeless elegance of real wood, KODA also offers natural wooden parquet in light or dark oak, as well as beautifully finished natural oiled parquet. This premium flooring option brings a rich, organic character to your interior, enhancing both warmth and sophistication.
KITCHEN OPTIONS
Standard configuration
KODA in standard equipment comes with kitchen readiness – so you have more options to choose from. You can either buy your kitchen cabinetry from IKEA or ask a local carpenter to make a tailored to your needs kitchen furniture.
| Standard configuration includest: | |
|---|---|
| Cabinets finishing: | Laminate Formica® Collection, 18 mm, white |
| Sink | Franke MARIS MRG 610-37 Fragranite® Sink Unit in Onyx (Black) |
| Mixer | Hansgrohe Focus M41 black or chrome |
| Sockets and LED lights | |
![]() | Hansgrohe Focus M41 black or chrome |
![]() | Franke MARIS MRG 610-37 Fragranite® Sink Unit in Onyx (Black) |
![]() | Premium: Damixa Silhouet |
Premium configuration
You can choose kitchen cabinetry made by Kodasema kitchen master – the kitchen includes sink, mixers and readiness for appliances you choose to buy and install yourself.
You can choose fully equipped kitchen made by Kodasema kitchen master with full set of Premium appliances that fit into your KODA kitchen.
*Check Premium EXTRAS available for your preferred KODA model kitchen
| Some of the Premium extras you can choose from | |
|---|---|
| Kitchen cabinets on side wall | Laminate Formica® Collection, 18 mm |
| Integrated dining table | Fenix nano, with cutlery drawer |
| Kitchen hood | Elica Era C 60, carbon filter, built in, 230-365 m3/h, 52-66 |
| Dishwasher | Bosch SPH4EMX28E |
| Washing machine | Electrolux EW7F348SI, built in |
| Mixer | Damixa Silhouet black or chrome |



Check out our kitchen examples and create your liking
BATHROOM OPTIONS
*Model-specific variations may apply
KODA houses come with fully finished bathrooms, thoughtfully designed for comfort and modern living. Each bathroom features a ventilation system, electric underfloor heating, LED lighting, and beautifully tiled walls. Standard sanitary fittings include a sink, mixers, a shower system, and a wall-hung toilet. To suit your aesthetic, mixers are available in elegant chrome or sophisticated black finishes.
All KODA model bathrooms can be further elevated with premium upgrades, including high-end mixers and shower systems in your choice of sleek chrome or bold black finishes, as well as a premium toilet for an added touch of sophistication.









